Skip to content
Downend Road
Ashley Down, Bristol, BS7

Sold STC

£450,000

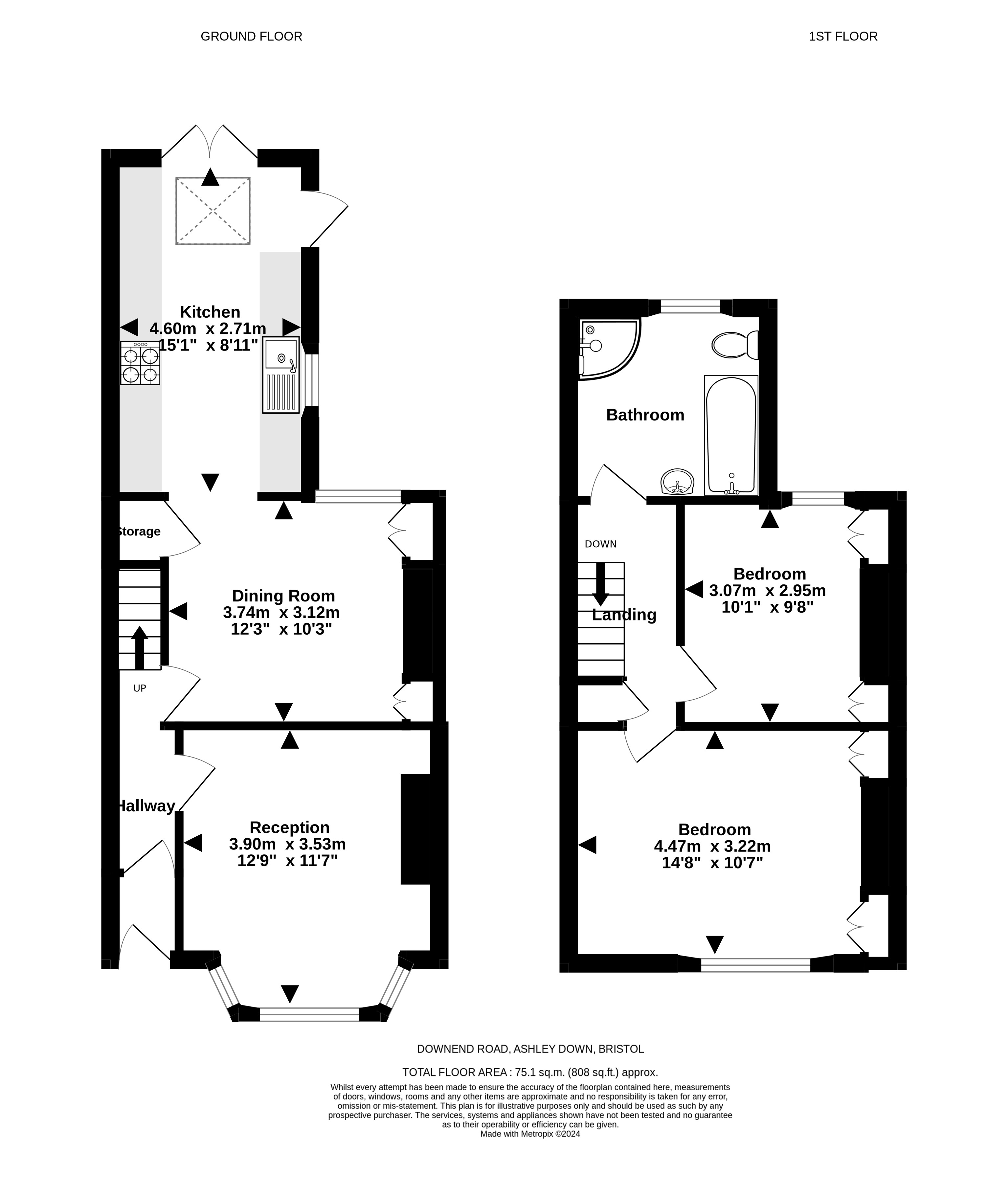
2 bed terraced house

Bedrooms

2

Living Rooms

1

Bathrooms

1

A stunning Victorian terraced property, steeped in traditional heritage yet embodying a very modern feel, nestled in a popular part of Bristol.

Key features

  • Two-double bedrooms
  • Meticulously maintained and looked after by the current owners
  • Traditional and classic features
  • Sizeable private rear garden
  • Close to the shops, cafe's and restaurants on Gloucester Road
  • Walking distance to the brand new Ashley Down train station
  • Close to the highly regarded Ashley Down primary school
  • EPC- C

Detail

Loving attention has been poured into this two-bedroom home, creating a warm and welcoming atmosphere. This stunning terraced home blends traditional Victorian features with stylish modern décor. This truly is a home made for modern living. The bay window in the front reception and open hallway create space as you move around the two floors. Thanks to thoughtful aes...

Similar properties

Ashley Down

Area guide
Bishopston Sales
201 Gloucester Rd, Bishopston, Bristol, BS7 8BG
We’re open...

Sunday

Monday

Tuesday

Wednesday

Thursday

Friday

Saturday

Closed

09:00 - 18.00

09:00 - 18.00

09:00 - 18.00

09:00 - 18.00

09:00 - 18.00

09.00 - 16.00