Skip to content
Ruby Street
Bedminster, Bristol, BS3

£425,000

2 bed end terraced house

Bedrooms

2

Living Rooms

2

Bathrooms

1

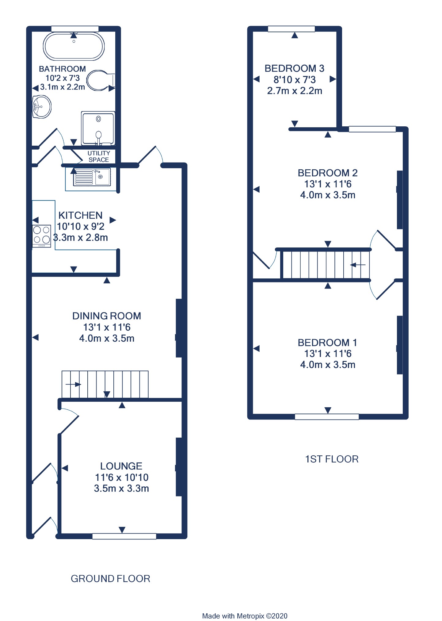
This 2/3 bed end-terraced house in Bedminster with a downstairs 4-piece bathroom, a courtyard garden, and no chain. A perfect blend of charm and convenience for £425,000.00!

Key features

  • Ruby Street, Bedminster
  • 2/3 Bedrooms
  • Lounge
  • Dining Room
  • Kitchen
  • Utility Space
  • Courtyard Garden
  • 4 Piece Bathroom Suite
  • Gas Central Heating
  • Double Glazing
  • No Chain

Detail

Tucked away on Ruby Street, this charming end-terraced house offers 2/3 bedrooms, a cosy lounge, a bright dining room, a well-equipped kitchen, and even a handy utility space. The 4-piece bathroom suite is a luxurious touch, while gas central heating and double glazing ensure year-round comfort. With no chain to worry about, this home is ready and waiting for its new owners to move in and make it their own.

Similar properties

Bedminster

Area guide
Southville Sales
The Plaza, 275 North Street, Southville, Bristol, BS3 1JN
We’re open...

Sunday

Monday

Tuesday

Wednesday

Thursday

Friday

Saturday

Closed

09:00 - 17.30

09:00 - 17.30

09:00 - 17.30

09:00 - 17.30

09:00 - 17.30

09.00 - 16.00